Casa indipendente in vendita

Palazzolo Sull'Oglio, Via Colombere - San Pancrazio
€ 208.000
Prezzo aggiornato
3 locali 3 locali
170 Mq 170 Mq
2 bagni 2 bagni

Casa indipendente in vendita

Palazzolo Sull'Oglio, Via Colombere - San Pancrazio

Descrizione annuncio

Palazzolo sull'Oglio:

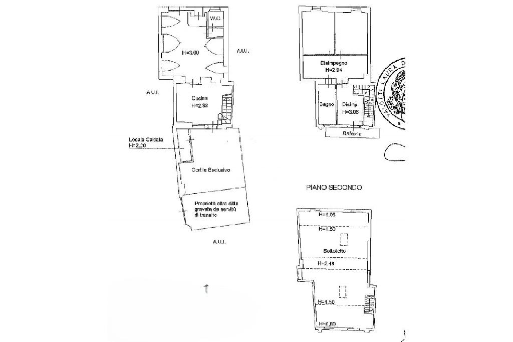
In zona San Pancrazio, In un contesto di corte tranquillo e riservato, proponiamo in vendita una porzione di casa.

L'ingresso si apre direttamente sulla cucina abitabile, dove la convivialità trova spazio ogni giorno. Proseguendo, al piano terra si sviluppano un ampio soggiorno caratterizzato dal soffito a volte, ideale per momenti di relax o accoglienza, e un bagno di servizio, discreto e funzionale.

Al piano superiore prende forma la zona notte, pensata per offrire comfort e riservatezza: due disimpegni che grazie alle loro dimensioni possono essere sfruttati come zone hobby/relax, uno di questi ha accesso al balcone, accompagnano due camere da letto luminose e un bagno finestrato con vasca idromassaggio.

A completare la proprietà, un sottotetto fruibile, versatile e pratico, perfetto come studio, spazio hobby o ambiente di servizio.

All'esterno, un cortile privato arricchisce la proposta: un angolo riservato da vivere secondo le proprie esigenze, sia come posto auto che come piacevole spazio all'aperto, dal cortile si accede al locale caldaia, che può essere utilizzato anche come deposito.

Questa soluzione rappresenta la scelta ideale per chi cerca una casa con carattere, ben distribuita e con spazi da vivere pienamente, dentro e fuori.

L'indirizzo dell'immobile è puramente indicativo della zona in cui si trova, tutto quanto riportato nell'annuncio, fotografie, descrizione e metrature non hanno valore contrattuale ma sono da intendersi solamente a titolo esplicativo.

Mostra tutto

Nelle vicinanze

Trasporto pubblico Trasporto pubblico
Palazzolo sull'Oglio
Palazzolo sull'Oglio
2,1 Km
Trasporto pubblico
390 m
streparava adro
streparava adro
2,5 Km
Scuole Scuole
Scuole Elementari e Medie
170 m
Plesso scolastico "Laura Bianchini"
170 m
CFP Scuola Paideia
280 m
Scuole
290 m
Scuola Primaria Statale
1,5 Km
Farmacia Farmacia
Busetti
180 m
Il laboratorio della naturopatia
1,7 Km
farmacia
2,2 Km
Farmacia Valcamonica
2,5 Km
Ospedali Ospedali
Mellino Mellini - Richiedei
2,9 Km
Supermercati Supermercati
LD market
1,2 Km
Italmark
2,0 Km
Migross
2,4 Km
Eurospin
2,4 Km
Penny Market
2,9 Km
Negozi Negozi
Negozi
80 m
Pane amore e fantasia
580 m
Abbigliamento
1,2 Km
Vezzoli
1,5 Km
Nonsolopane
1,9 Km
Bar Bar
Buoena Vida Café
70 m
Oratorio San Giovanni Bosco
180 m
Bar Centrale
620 m
Highway Café
1,0 Km
Traffic
1,1 Km
Ristoranti Ristoranti
Hostaria al Portico
80 m
Ristoranti
1,1 Km
Trattoria Sole (Mingardi)
1,9 Km
Voglia di Pizza
1,9 Km
Trattoria "Tre Ponti"
2,2 Km
Mostra tutto

Caratteristiche

Rif.:
61095558
Piano:
2 di 2 (Piano basso)
Posti auto:
1
Balconi:
1
Camere da letto:
2
Arredamento:
Parziale
Mostra tutto
Prezzo Prezzo
€ 208.000
Rata mutuo Rata mutuo
€ 981 / mese
Spese annue Spese annue
€ 0
Proponi il tuo prezzoProponi il tuo prezzo

Classe Energetica

F
F
F
F
F
F
F
F
F
EP globale non rinnovabile:
199.62 kW h/m² anno
EP invernale del fabbricato:
EP estiva del fabbricato:
Anno di costruzione:
1980
Riscaldamento:
Autonomo
Tipo impianto:
A radiatori
Tipo alimentazione:
Metano

Prezzo ridotto di €1 (4%%)

Ti interessa visionare l'immobile?

Fissa un appuntamento  Fissa un appuntamento

Richiedi informazioni

Clicca su Leggi per aprire l'informativa
* Questi campi sono obbligatori

Calcola il tuo mutuo

Semplice e senza impegno
Anticipo

( % )
Mutuo

( % )

pochi semplici passi

inserisci i tuoi dati
Questionario completato
Grazie per aver richiesto un appuntamento senza impegno con un nostro Consulente del Credito e Assicurativo.

Hai inserito correttamente tutti i dati necessari e a breve riceverai una e-mail con un link da convalidare per inviare i tuoi dati.
Affiliato
Immobiliare Palazzolo Sas
Via Marconi, 51 25036 Palazzolo Sull'Oglio (BS)

Il nostro staff


  • Massimo Zanotti
    Affiliato

  • Lucilla Ferrari
    Responsabile

  • Alessia Bertoli
    Collaboratrice
Via Marconi, 51 25036 Palazzolo Sull'Oglio (BS)
Zona: Palazzolo sull'Oglio - Palosco- Pontoglio
Mostra su mappa
Orari: dal lunedì al venerdì 09:00-12:30/14:30-19:30, sabato chiusura ore 16:00
Affiliato
Immobiliare Palazzolo Sas
Via Marconi, 51 25036 Palazzolo Sull'Oglio (BS)

2026 Tecnocasa Franchising S.p.A. - P. IVA 08365160152 - Via Monte Bianco 60/A 20089 Rozzano (MI). Ogni agenzia ha un proprio titolare ed è autonoma. Privacy policy | Policy utilizzo | Cookie policy