Casa di corte in vendita

Palazzolo Sull'Oglio, Via Milano - San Pancrazio
€ 109.000
5 locali 5 locali
180 Mq 180 Mq
2 bagni 2 bagni

Casa di corte in vendita

Palazzolo Sull'Oglio, Via Milano - San Pancrazio

Descrizione annuncio

Palazzolo s/O:

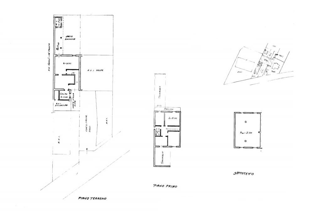
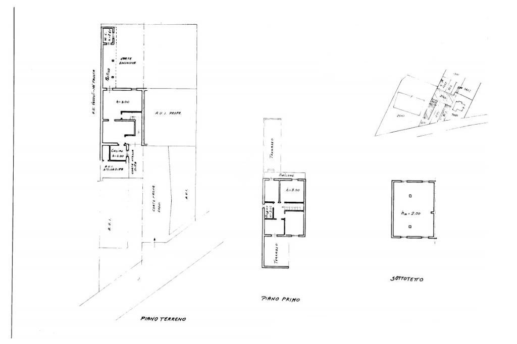
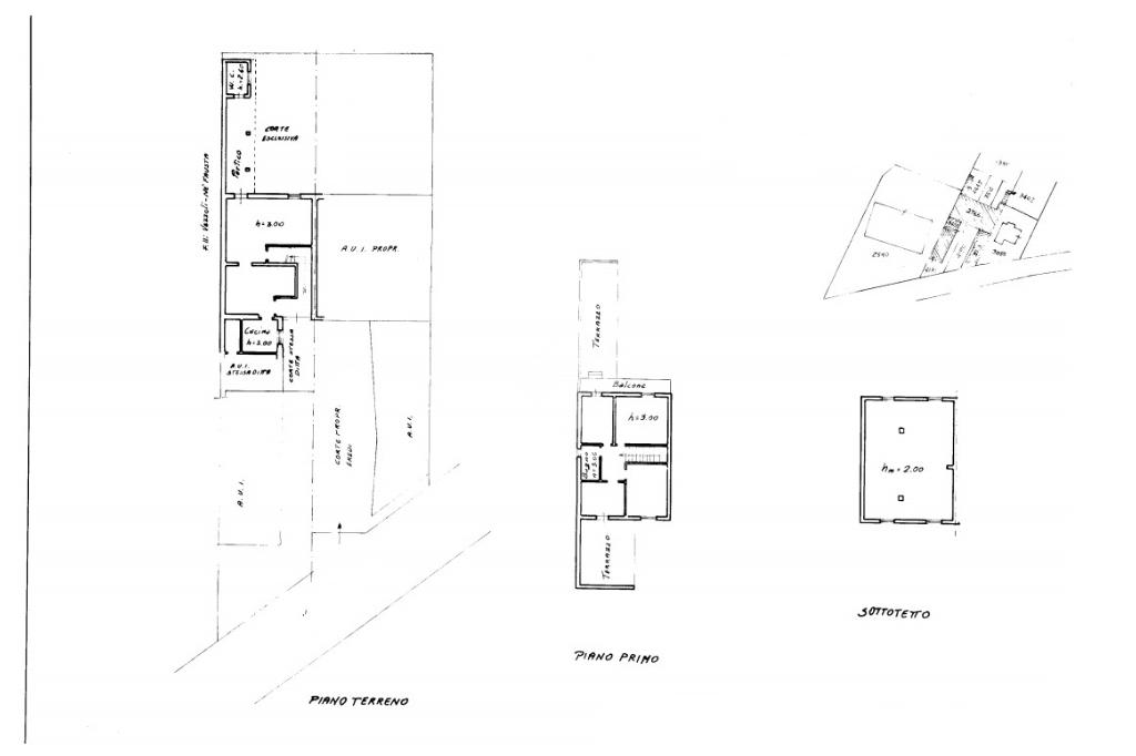
Nel cuore di San Pancrazio, in posizione centrale e comoda a tutti i principali servizi, proponiamo in vendita porzione indipendente terra-cielo in corte. Al piano terra, l’ingresso conduce alla zona giorno composta da soggiorno, cucina abitabile, corridoio, una camera e un bagno. Da questo livello si accede anche al portico esterno e alla corte esclusiva, ideale per vivere l’esterno in totale privacy. Salendo al primo piano si sviluppa la zona notte, composta da quattro camere da letto, un bagno, un balcone e due grandi terrazzi, spazi esterni particolarmente vivibili che rappresentano un valore aggiunto per la casa. Completa la proprietà un sottotetto, utile come spazio accessorio eventualmente da valorizzare in fase di ristrutturazione, oltre a un comodo box auto. L’immobile si presenta da ristrutturare, ma proprio grazie alle dimensioni importanti, alla distribuzione degli spazi e alla presenza di corte privata, portico e terrazzi, offre notevoli possibilità di personalizzazione e valorizzazione.

Mostra tutto

Nelle vicinanze

Trasporto pubblico Trasporto pubblico
Palazzolo sull'Oglio
Palazzolo sull'Oglio
1,9 Km
Trasporto pubblico
520 m
streparava adro
streparava adro
2,8 Km
Scuole Scuole
Plesso scolastico "Laura Bianchini"
420 m
Scuole Elementari e Medie
420 m
CFP Scuola Paideia
470 m
Scuole
470 m
Scuola Primaria Statale
1,3 Km
Farmacia Farmacia
Busetti
210 m
Il laboratorio della naturopatia
1,4 Km
farmacia
1,9 Km
Farmacia Valcamonica
2,2 Km
Farmacia
2,9 Km
Ospedali Ospedali
Mellino Mellini - Richiedei
2,7 Km
Supermercati Supermercati
LD market
1,3 Km
Italmark
1,7 Km
Migross
2,2 Km
Eurospin
2,5 Km
Penny Market
2,7 Km
Negozi Negozi
Negozi
140 m
Pane amore e fantasia
720 m
Vezzoli
1,3 Km
Abbigliamento
1,3 Km
Nonsolopane
1,7 Km
Bar Bar
Buoena Vida Café
280 m
Oratorio San Giovanni Bosco
350 m
Bar Centrale
760 m
Highway Café
1,1 Km
Traffic
1,2 Km
Ristoranti Ristoranti
Hostaria al Portico
210 m
Ristoranti
1,4 Km
Voglia di Pizza
1,7 Km
Trattoria "Tre Ponti"
1,9 Km
Osteria della Villetta
2,0 Km
Mostra tutto

Caratteristiche

Rif.:
61189431
Piano:
Basso di 2
Totale piani:
2
Box:
1
Balconi:
1
Terrazzi:
2
Mostra tutto
Prezzo Prezzo
€ 109.000
Rata mutuo Rata mutuo
€ 518 / mese
Spese annue Spese annue
€ 0
Proponi il tuo prezzoProponi il tuo prezzo

Classe Energetica

G
G
G
G
G
G
G
G
G
Anno di costruzione:
1967
Riscaldamento:
Autonomo
Tipo impianto:
A radiatori
Tipo alimentazione:
Metano

Ti interessa visionare l'immobile?

Fissa un appuntamento  Fissa un appuntamento

Richiedi informazioni

Clicca su Leggi per aprire l'informativa
* Questi campi sono obbligatori

Calcola il tuo mutuo

Semplice e senza impegno
Anticipo

( % )
Mutuo

( % )

pochi semplici passi

inserisci i tuoi dati
Questionario completato
Grazie per aver richiesto un appuntamento senza impegno con un nostro Consulente del Credito e Assicurativo.

Hai inserito correttamente tutti i dati necessari e a breve riceverai una e-mail con un link da convalidare per inviare i tuoi dati.
Affiliato
Immobiliare Palazzolo Sas
Via Marconi, 51 25036 Palazzolo Sull'Oglio (BS)

Il nostro staff


  • Massimo Zanotti
    Affiliato

  • Lucilla Ferrari
    Responsabile

  • Alessia Bertoli
    Collaboratrice
Via Marconi, 51 25036 Palazzolo Sull'Oglio (BS)
Zona: Palazzolo sull'Oglio - Palosco- Pontoglio
Mostra su mappa
Orari: dal lunedì al venerdì 09:00-12:30/14:30-19:30, sabato chiusura ore 16:00
Affiliato
Immobiliare Palazzolo Sas
Via Marconi, 51 25036 Palazzolo Sull'Oglio (BS)

2026 Tecnocasa Franchising S.p.A. - P. IVA 08365160152 - Via Monte Bianco 60/A 20089 Rozzano (MI). Ogni agenzia ha un proprio titolare ed è autonoma. Privacy policy | Policy utilizzo | Cookie policy