Porzione di bifamiliare in vendita

Palazzolo Sull'Oglio, Via a. boito
€ 260.000
4 locali 4 locali
160 Mq 160 Mq
2 bagni 2 bagni

Porzione di bifamiliare in vendita

Palazzolo Sull'Oglio, Via a. boito

Descrizione annuncio

Palazzolo sull'Oglio:

In una delle zone più tranquille e residenziali di Palazzolo sull'Oglio, nel quartiere di San Giuseppe, proponiamo in vendita una porzione di bifamiliare edificata nel 2000, perfetta per chi desidera vivere in un contesto riservato ma comodo a tutti i principali servizi.

L'immobile si presenta in buono stato manutentivo e gode di un'ottima esposizione. Il giardino privato abbraccia la casa su tre lati, offrendo ampi spazi verdi e garantendo privacy e tranquillità.

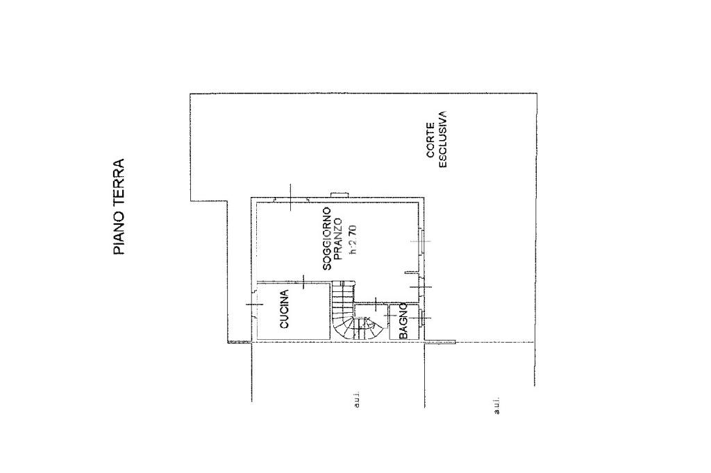
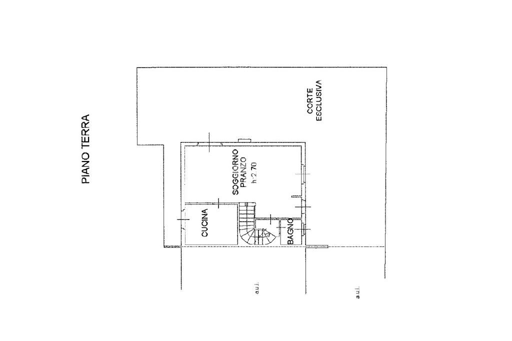
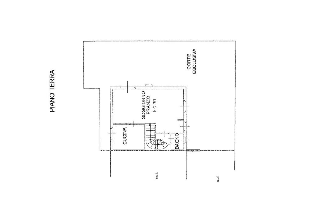
L'ingresso si apre sull'ampio soggiorno, un ambiente luminoso e accogliente, dotato di una zona dedicata alla sala da pranzo, ideale per momenti conviviali in famiglia.

La cucina è abitabile e separata dalla zona living.

Il piano terra è servito da un pratico bagno di servizio.

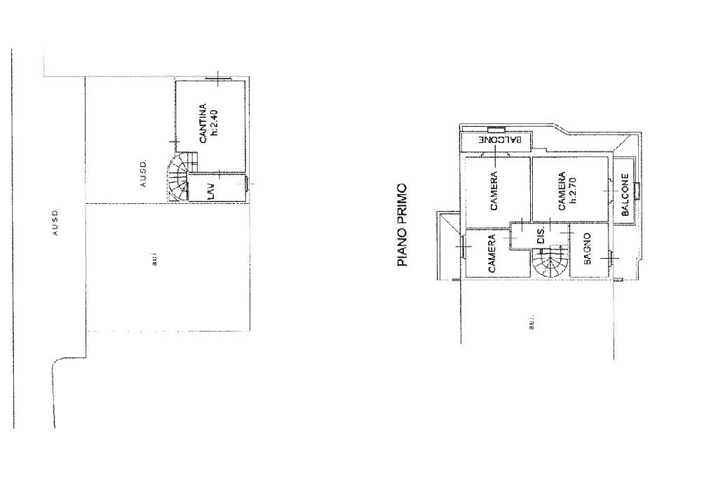
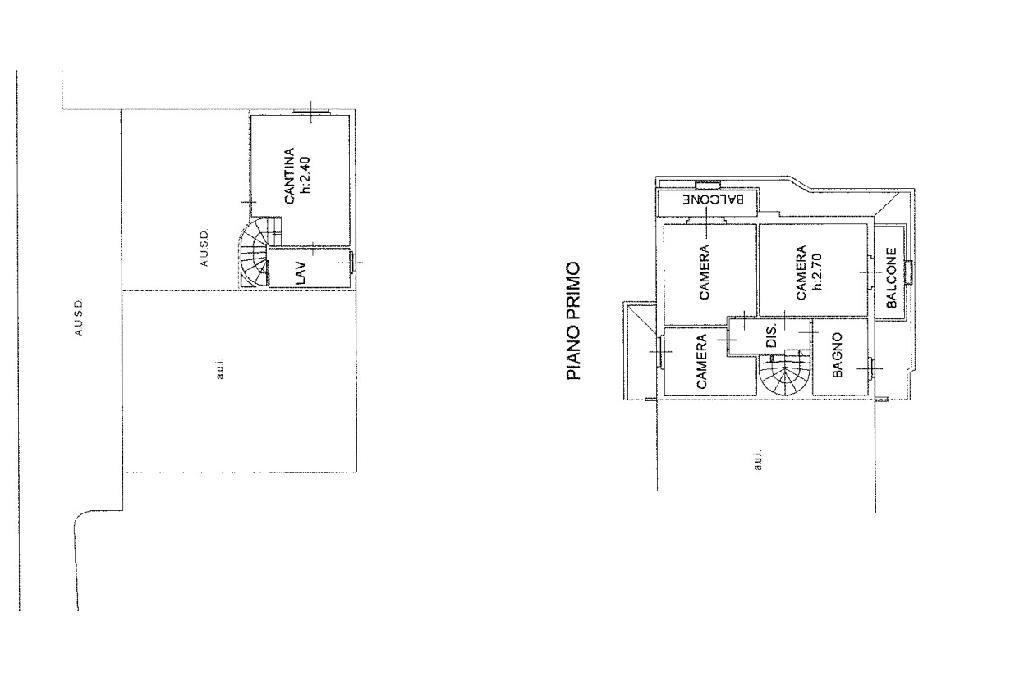
Salendo al piano superiore, troviamo la zona notte composta da tre camere da letto di generose dimensioni, due delle quali dotate di balcone, oltre al bagno padronale con vasca.

Il piano interrato, collegato internamente, ospita una spaziosa cantina, una comoda lavanderia e un ampio box triplo con doppia basculante, ideale per chi possiede più veicoli o necessita di ulteriore spazio di deposito.

Soluzione ideale per famiglie che cercano indipendenza, spazi vivibili sia interni che esterni e un contesto sereno ma ben collegato.

Contattaci per maggiori informazioni o per fissare una visita!

Mostra tutto

Nelle vicinanze

Trasporto pubblico Trasporto pubblico
Palazzolo sull'Oglio
Palazzolo sull'Oglio
750 m
Trasporto pubblico
1,5 Km
Scuole Scuole
Scuola Primaria Statale
130 m
Scuole
160 m
scuola media
1,0 Km
scuola elementare
1,1 Km
Centro Scolastico Polivalente
1,4 Km
Farmacia Farmacia
Il laboratorio della naturopatia
310 m
farmacia
830 m
Farmacia Valcamonica
1,0 Km
Busetti
1,4 Km
Farmacia
1,7 Km
Ospedali Ospedali
Mellino Mellini - Richiedei
1,5 Km
Supermercati Supermercati
Italmark
540 m
Migross
1,1 Km
Eurospin
1,4 Km
Penny Market
1,6 Km
Dimeglio
1,8 Km
Negozi Negozi
Vezzoli
180 m
Negozi
300 m
Nonsolopane
560 m
Panificio Muratori
1,7 Km
Indian Market
1,8 Km
Bar Bar
Bar
70 m
Baretto
280 m
Oratorio San Giuseppe
340 m
Orient Express
760 m
Crazy River
1,3 Km
Ristoranti Ristoranti
Voglia di Pizza
500 m
Trattoria "Tre Ponti"
730 m
Ristoranti
780 m
Osteria della Villetta
780 m
Hostaria al Portico
1,4 Km
Mostra tutto

Caratteristiche

Rif.:
61097216
Piano:
1 di 1 (Piano basso)
Box:
1
Balconi:
2
Camere da letto:
3
Arredamento:
Parziale
Mostra tutto
Prezzo Prezzo
€ 260.000
Rata mutuo Rata mutuo
€ 1.227 / mese
Spese annue Spese annue
€ 100
Proponi il tuo prezzoProponi il tuo prezzo
Immobile valutato con T·Valuta

Classe Energetica

G
G
G
G
G
G
G
G
G
EP invernale del fabbricato:
EP estiva del fabbricato:
Anno di costruzione:
2000
Riscaldamento:
Autonomo
Tipo impianto:
A radiatori
Tipo alimentazione:
Metano

Ti interessa visionare l'immobile?

Fissa un appuntamento  Fissa un appuntamento

Richiedi informazioni

Clicca su Leggi per aprire l'informativa
* Questi campi sono obbligatori

Calcola il tuo mutuo

Semplice e senza impegno
Anticipo

( % )
Mutuo

( % )

pochi semplici passi

inserisci i tuoi dati
Questionario completato
Grazie per aver richiesto un appuntamento senza impegno con un nostro Consulente del Credito e Assicurativo.

Hai inserito correttamente tutti i dati necessari e a breve riceverai una e-mail con un link da convalidare per inviare i tuoi dati.
Affiliato
Immobiliare Palazzolo Sas
Via Marconi, 51 25036 Palazzolo Sull'Oglio (BS)

Il nostro staff


  • Massimo Zanotti
    Affiliato

  • Lucilla Ferrari
    Responsabile

  • Alessia Bertoli
    Collaboratrice
Via Marconi, 51 25036 Palazzolo Sull'Oglio (BS)
Zona: Palazzolo sull'Oglio - Palosco- Pontoglio
Mostra su mappa
Orari: dal lunedì al venerdì 09:00-12:30/14:30-19:30, sabato chiusura ore 16:00
Affiliato
Immobiliare Palazzolo Sas
Via Marconi, 51 25036 Palazzolo Sull'Oglio (BS)

2025 Tecnocasa Franchising S.p.A. - P. IVA 08365160152 - Via Monte Bianco 60/A 20089 Rozzano (MI). Ogni agenzia ha un proprio titolare ed è autonoma. Privacy policy | Policy utilizzo | Cookie policy