Casa indipendente in vendita

Pontoglio, Via Grazia Deledda
€ 320.000
5 locali 5 locali
417 Mq 417 Mq
2 bagni 2 bagni

Casa indipendente in vendita

Pontoglio, Via Grazia Deledda

Descrizione annuncio

Pontoglio:

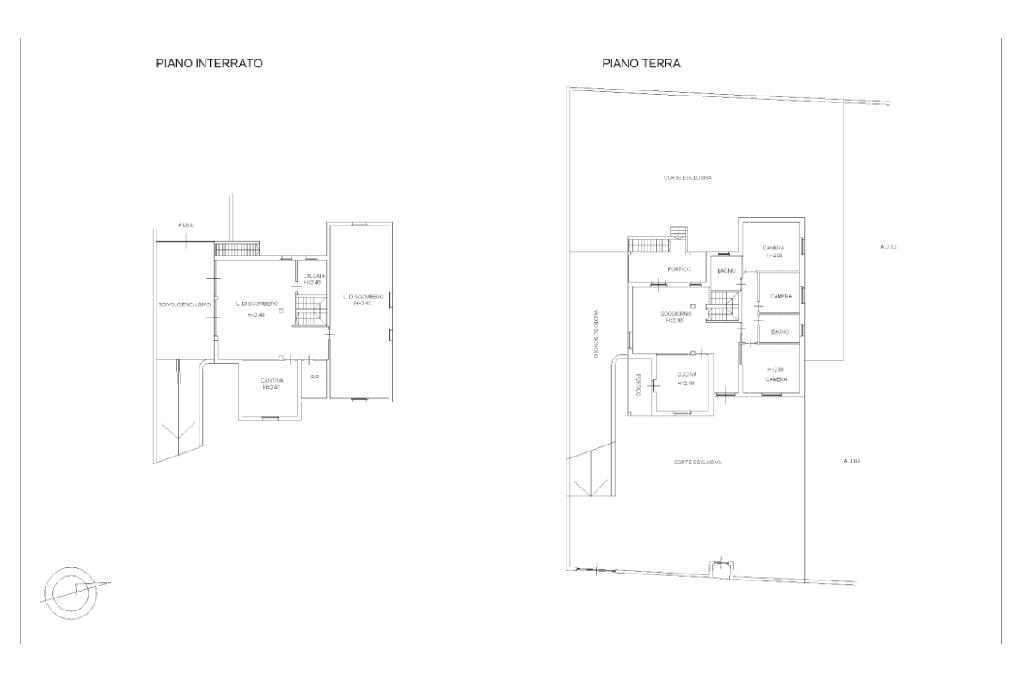
In zona semiperiferica e tranquilla proponiamo questa villa indipendente posta su unico piano di circa 175 mq più ampio interrato di ben circa 240 mq, giardino esclusivo di circa 525 mq, accesso carrale autonomo.

Dall'ingresso il corridoio ci conduce all'ampio soggiorno che comunica con la cucina abitabile. Sia dal soggiorno che dalla cucina si hanno a disposizione due ampi porticati da poter sfruttare nel periodo estivo.

La zona notte si compone da ben tre ampie camere servite da due bagni.

Dalla scala interna scendiamo nell'interrato dove abbiamo a disposizione un ambiente taverna di circa 70 mq, cantine e locale caldaia per circa 35 mq, e autorimesse che potrebbero essere convertite in altro locale utilizzabile di 60 mq circa; rimane a disposizione una doppia o tripla autorimessa di circa 40 mq.

Se non bastasse la metratura a disposizione vi è la possibilità già autorizzata dal comune per un ampliamento sia in estensione al piano terra che un sopralzo al primo piano per un realizzo potenziale di ben 500 mq.

L'indirizzo dell'immobile è puramente indicativo.

Mostra tutto

Nelle vicinanze

Supermercati Supermercati
Supermercati
650 m
Negozi Negozi
Pasticceria del Vicolo
510 m
Bar Bar
Original
1,7 Km
Ristoranti Ristoranti
Trattoria al Laghetto
390 m
Asporto più
1,6 Km
Prati Verdi
1,8 Km
Mostra tutto

Caratteristiche

Rif.:
60583795
Piano:
Basso di 1
Totale piani:
1
Box:
2
Posti auto:
4
Terrazzi:
2
Mostra tutto
Prezzo Prezzo
€ 320.000
Rata mutuo Rata mutuo
€ 1.520 / mese
Spese annue Spese annue
€ 0
Proponi il tuo prezzoProponi il tuo prezzo

Classe Energetica

G
G
G
G
G
G
G
G
G
EP globale non rinnovabile:
254.52 kW h/m² anno
EP invernale del fabbricato:
EP estiva del fabbricato:
Anno di costruzione:
1990
Riscaldamento:
Autonomo
Tipo impianto:
A radiatori
Tipo alimentazione:
Metano

Ti interessa visionare l'immobile?

Fissa un appuntamento  Fissa un appuntamento

Richiedi informazioni

Clicca su Leggi per aprire l'informativa
* Questi campi sono obbligatori

Calcola il tuo mutuo

Semplice e senza impegno
Anticipo

( % )
Mutuo

( % )

pochi semplici passi

inserisci i tuoi dati
Questionario completato
Grazie per aver richiesto un appuntamento senza impegno con un nostro Consulente del Credito e Assicurativo.

Hai inserito correttamente tutti i dati necessari e a breve riceverai una e-mail con un link da convalidare per inviare i tuoi dati.
Affiliato
Immobiliare Palazzolo Sas
Via Marconi, 51 25036 Palazzolo Sull'Oglio (BS)

Il nostro staff


  • Massimo Zanotti
    Affiliato

  • Lucilla Ferrari
    Responsabile

  • Alessia Bertoli
    Collaboratrice
Via Marconi, 51 25036 Palazzolo Sull'Oglio (BS)
Zona: Palazzolo sull'Oglio - Palosco- Pontoglio
Mostra su mappa
Orari: dal lunedì al venerdì 09:00-12:30/14:30-19:30, sabato chiusura ore 16:00
Affiliato
Immobiliare Palazzolo Sas
Via Marconi, 51 25036 Palazzolo Sull'Oglio (BS)

2026 Tecnocasa Franchising S.p.A. - P. IVA 08365160152 - Via Monte Bianco 60/A 20089 Rozzano (MI). Ogni agenzia ha un proprio titolare ed è autonoma. Privacy policy | Policy utilizzo | Cookie policy